Другой город
Акции

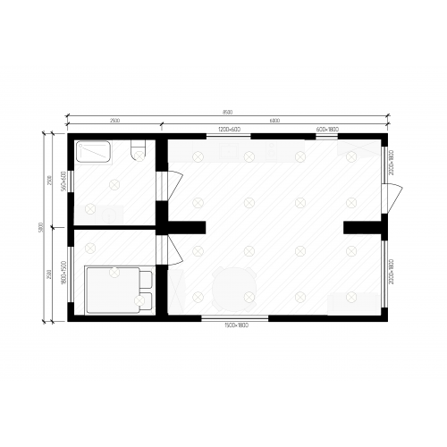
FoxDacha 42,5

от 1 970 000 ₽
Город приема
Оставить заявку

Модульный дом с панорамными окнами — экологичность и энергоэффективность. Использование качественных материалов и современных технологий при строительстве модульных домов с панорамными окнами позволяет обеспечить высокую энергоэффективность и экологическую безопасность жилья.

Площадь: 42,5
ВхДхШ: 2,95х5,0х8,5м.
Смотрите также