Другой город
Акции

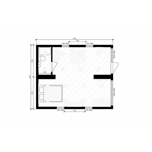
FoxDacha 30

от 1 170 000 ₽
Город приема
Оставить заявку

Быстровозводимый модульный дом с качественными материалами и панорамными окнами. Модульные дома с панорамными окнами изготавливаются из высококачественных материалов, обеспечивающих надёжность и долговечность конструкции. Благодаря своим небольшим размерам, модульные дома быстро монтируются на участке.

Площадь: 30
ВхДхШ: 2,95х5,0х6,0м.
Смотрите также