Другой город
Акции

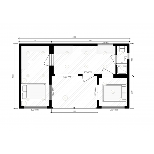
ScandiFox 34

от 1 650 000 ₽
Город приема
Оставить заявку

Модульный дом с панорамными окнами — идеальное место для отдыха. Модульные дома с панорамными окнами идеально подходят для отдыха и релаксации, так как они обеспечивают уединение, тишину и спокойствие.

Площадь: 34
ВхДхШ: 2,95х8,5х6,0м.
Смотрите также